vorheriges Dokument
nächstes Dokument

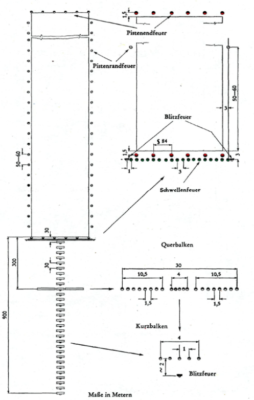
Anlage 20 ZFV 1972

Aktuelle FassungIn Kraft seit 01.9.1972

Anlage 20

Befeuerung Kategorie I (§§ 79, 82, 83 und 84)

Zuletzt aktualisiert am

27.11.2017

Gesetzesnummer

10011441

Dokumentnummer

NOR12148057

alte Dokumentnummer

N9197249452J

Lizenziert vom RIS (ris.bka.gv.at - CC BY 4.0 DEED)