Anlage
(zu § 4 Z 3)
Prüfung der wärmedämmenden Eigenschaften eines Bauteiles
Die Prüfung ist von akkreditierten Stellen im Rahmen des fachlichen Umfangs ihrer Akkreditierung (§ 11 Abs. 2 des Akkreditierungsgesetzes, BGBl. Nr. 468/1992, in der Fassung BGBl. Nr. 430/1996) von Anstalten des Bundes oder eines Bundeslandes, von Ziviltechnikern oder Gewerbetreibenden, jeweils im Rahmen ihrer Befugnisse, entsprechend den nachfolgenden Z 1 bis Z 3 durchzuführen:
1. Beschreibung der Prüfanordnung:
Aus den zu prüfenden Materialien ist ein dreiseitig geschlossenes Regal zu errichten; dieses Regal hat aus mindestens drei Fachböden zu bestehen, die jeweils 300 mm lang und 300 mm breit sind und deren Abstand jeweils 350 mm beträgt.
- Auf dem untersten Fachboden ist in der Mitte eine Blechwanne, die 200 mm lang, 200 mm breit und 30 mm hoch ist, aufzustellen und mit einem Liter Brennspiritus (mindestens 92,4 Prozent Massengehalt Ethanol) zu füllen.
- Auf dem darüber liegenden Fachboden sind drei offene DGP aus Stahlblech ohne Ventil mit einem Durchmesser von jeweils 55 mm und mit einer Höhe von jeweils 200 mm so aufzustellen, dass sich eine DGP über der Mitte der Blechwanne befindet und dass sich die beiden anderen DGP über zwei diagonal gegenüberliegenden Ecken der Blechwanne befinden. Der Fachboden ist mit einer 50 mm dicken Mineralwollplatte abzudecken, deren Raummasse (Dichte) zirka 220 kg/m3 beträgt; in dieser Mineralwollplatte sind drei für die aufgestellten DGP passende Öffnungen auszuschneiden.
- Im Inneren der DGP ist am bombierten Boden jeweils ein Thermoelement (zB Eisen/Konstantan oder Nickel-Chrom/Nickel 0,5 mm Drahtdurchmesser) anzubringen; die DGP sind mit jeweils 0,25 Liter Brennspiritus zu füllen. Zur Kontrolle der Verbrennungstemperatur ist ein weiteres Thermoelement an der Unterseite des Fachbodens über der Mitte der Blechwanne und 10 mm von der Unterseite des Fachbodens entfernt zu befestigen.
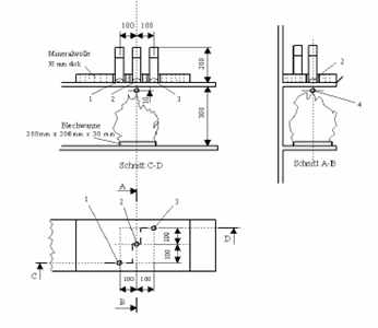
2. Grafische Darstellung der Prüfanordnung:
1-3: Thermoelemente im Inneren der DGP am Dosenboden
4: Thermoelement unterhalb des Fachbodens
3. Prüfverfahren:
Bei einer Prüfraumtemperatur von 15 °C bis 25 °C ist der Brennspiritus in der Blechwanne zu entzünden. In der Folge sind die Temperaturen innerhalb der DGP und unterhalb des Regalbodens, auf dem sich die DGP befinden, aufzuzeichnen. Die Temperaturen innerhalb der DGP dürfen bei zwei mit jeweils gleicher Prüfanordnung durchgeführten Versuchen nach zehn Minuten 50 °C im Mittel nicht überschreiten.
- Über das Ergebnis der Prüfung ist ein Attest auszustellen.
Zuletzt aktualisiert am
20.12.2018
Gesetzesnummer
20002373
Dokumentnummer
NOR40038006
Lizenziert vom RIS (ris.bka.gv.at - CC BY 4.0 DEED)
