Anlage 7
ANLAGE 7
ANLAGE ÜBER DIE ZULASSUNG VON BEHÄLTERN
Teil I
VORSCHRIFTEN ÜBER DIE TECHNISCHEN BEDINGUNGEN FÜR BEHÄLTER, DIE ZUM INTERNATIONALEN TRANSPORT UNTER ZOLLVERSCHLUSS ZUGELASSEN WERDEN KÖNNEN
Grundsätze
Zum internationalen Warentransport unter Zollverschluß werden nur Behälter zugelassen, die so gebaut und eingerichtet sind, daß
- a) dem zollamtlich verschlossenen Teil des Behälters keine Waren entnommen oder in ihn hineingebracht werden können, ohne sichtbare Spuren des Aufbrechens zu hinterlassen oder den Zollverschluß zu verletzen;
- b) Zollverschlüsse auf einfache und wirksame Weise angebracht werden können;
- c) sie keine Verstecke enthalten, in denen Waren verborgen werden können;
- d) alle zur Aufnahme von Waren geeigneten Räume für die Zollkontrolle leicht zugängig sind.
Bau der Behälter
(1) Damit die Behälter den Bestimmungen des Artikels 1 dieser Vorschriften entsprechen, gilt folgendes:
- a) Die Bestandteile des Behälters (Wände, Boden, Türen, Dach, Pfosten, Rahmen, Querträger usw.) müssen entweder durch Vorrichtungen, die von außen nicht entfernt und wieder angebracht werden können, ohne sichtbare Spuren zu hinterlassen, oder durch eine Konstruktion zusammengefügt sein, die ohne Hinterlassung sichtbarer Spuren nicht verändert werden kann. Bestehen Wände, Boden, Türen und Dach aus verschiedenen Bauteilen, so müssen diese den gleichen Erfordernissen entsprechen und genügend widerstandsfähig sein.
- b) Türen und alle anderen Abschlußeinrichtungen (einschließlich Hähne, Mannlochdeckel, Flanschen usw.) müssen mit einer Vorrichtung versehen sein, an der ein Zollverschluß angebracht werden kann. Diese Vorrichtung muß so beschaffen sein, daß sie von außen nicht entfernt und wieder angebracht werden kann, ohne sichtbare Spuren Zu hinterlassen, und die Tür oder Abschlußeinrichtung nicht geöffnet werden kann, ohne den Zollverschluß zu verletzen. Dieser muß ausreichend geschützt sein. Schiebedächer sind zulässig.
- c) Lüftungs- und Abflußöffnungen sind mit einer Vorrichtung zu versehen, die den Zugang zum Innern des Behälters verhindert. Diese Vorrichtung muß so beschaffen sein, daß sie von außen nicht entfernt und wieder angebracht werden kann, ohne sichtbare Spuren zu hinterlassen.
(2) Ungeachtet des Artikels 1 lit. c dieser Vorschriften sind Behälterbestandteile, die aus praktischen Gründen Hohlräume enthalten müssen (z. B. zwischen den Wandungen von Doppelwänden), zulässig. Damit die Hohlräume nicht als Warenversteck benutzt werden können,
- i) ist die innere Verkleidung des Behälters, wo sich diese über die gesamte Höhe vom Boden bis zum Dach erstreckt oder wo in anderen Fällen der Zwischenraum zwischen diesen und der Außenwand vollständig eingeschlossen ist, so zu befestigen, daß sie nicht entfernt und wieder angebracht werden kann, ohne sichtbare Spuren zu hinterlassen, und
- ii) müssen die Hohlräume, wo sich eine innere Verkleidung nicht über die ganze Höhe erstreckt und die Räume zwischen der Verkleidung und der Außenwand nicht vollständig eingeschlossen sind, sowie in allen anderen Fällen, bei denen es Hohlräume in einem Behälter gibt, auf eine Mindestzahl beschränkt und für die Zollkontrolle leicht zugänglich sein.
3. Lichtöffnungen sind in abnehmbaren Karosserien nach Anlage 6, Erläuterung 0.1 e) des Abkommens zulässig, sofern sie aus genügend widerstandsfähigem Material hergestellt sind und von außen nicht entfernt und wieder angebracht werden können, ohne sichtbare Spuren zu hinterlassen. Glas kann zugelassen werden; wird jedoch anderes als Sicherheitsglas verwendet, so müssen die Lichtöffnungen mit einem festen Metallgitter versehen sein, das von außen nicht entfernt werden kann; die Maschenweite des Gitters darf höchstens 10 mm betragen. Lichtöffnungen sind nicht zulässig in Behältern nach Artikel 1e) des Abkommens, außer in abnehmbaren Karosserien nach Anlage 6, Erläuterung 1e) des Abkommens.
Zusammenklappbare oder zerlegbare Behälter
Die Artikel 1 und 2 dieser Vorschriften gelten auch für zusammenklappbare oder zerlegbare Behälter; diese müssen darüber hinaus mit einer Verriegelungsvorrichtung versehen sein, die die einzelnen Teile des Behälters nach seiner Montage feststellt. Die Verriegelungsvorrichtung muß zollamtlich verschlossen werden können, wenn sie sich außerhalb des montierten Behälters befindet.
Behälter mit Schutzdecken
(1) Die Artikel 1 bis 3 dieser Vorschriften gelten auch für Behälter mit Schutzdecken, soweit sie darauf anwendbar sind. Außerdem müssen diese Behälter den Bestimmungen dieses Artikels entsprechen.
(2) Die Schutzdecke muß entweder aus starkem Segeltuch oder aus nicht dehnbarem, genügend widerstandsfähigem kunststoff- oder kautschukbeschichtetem Gewebe bestehen. Sie muß in gutem Zustand und so hergerichtet sein, daß nach Anlegen der Verschlußvorrichtung ein Zugang zur Ladung nicht möglich ist, ohne sichtbare Spuren zu hinterlassen.
(3) Ist die Schutzdecke aus mehreren Stücken zusammengesetzt, so müssen die Ränder der Stücke ineinandergefaltet und durch zwei mindestens 15 mm voneinander entfernte Nähte miteinander verbunden sein. Die Nähte müssen entsprechend der diesen Vorschriften beigefügten Zeichnung 1 ausgeführt sein; wenn es jedoch bei gewissen Teilen der Schutzdecke nicht möglich ist, die Stücke auf diese Weise zusammenzunähen, so genügt es, daß nur der Rand des oberen Teiles umgefaltet und entsprechend der diesen Vorschriften beigefügten Zeichnung 2 angenäht ist. Die eine Naht, deren Faden sich in der Farbe vom Faden der anderen Naht und von der Schutzdecke deutlich unterscheiden muß, darf nur an der Innenseite sichtbar sein. Alle Nähte müssen mit der Maschine genäht sein.
(4) Besteht die Schutzdecke aus kunststoffbeschichtetem Gewebe und ist sie aus mehreren Stücken zusammengesetzt, so können diese Stücke auch durch Verschweißen entsprechend der diesen Vorschriften beigefügten Zeichnung 3 aneinandergefügt werden. Dabei müssen sich die Ränder der Stücke um mindestens 15 mm überlappen. Sie müssen in der vollen Breite der 15 mm miteinander verschmolzen sein. Auf der Außenseite ist die Überlappkante mit einem mindestens 7 mm breiten Kunststoffband im selben Schweißvorgang zu überdecken. Das Kunststoffband und ein Streifen von mindestens 3 mm zu beiden Seiten dieses Bandes sind mit einer gleichförmigen und deutlich sichtbaren Narbung zu versehen. Das Verschweißen muß so ausgeführt sein, daß die Stücke nicht getrennt und danach wieder zusammengefügt werden können, ohne sichtbare Spuren zu hinterlassen.
(5) Ausbesserungen sind nach dem in der diesen Vorschriften beigefügten Zeichnung 4 dargestellten Verfahren auszuführen; die Ränder müssen ineinandergefaltet und durch zwei sichtbare, mindestens 15 mm voneinander entfernte Nähte miteinander verbunden sein, die Farbe des auf der Innenseite sichtbaren Fadens muß sich von der Farbe des auf der Außenseite sichtbaren Fadens und von der Farbe der Schutzdecke unterscheiden; alle Nähte müssen mit der Maschine genäht sein. Wenn zur Ausbesserung einer Schutzdecke, die an den Rändern beschädigt ist, an den schadhaften Stellen Flicken eingesetzt werden müssen, so können die Nähte auch nach Absatz 3 entsprechend der diesen Vorschriften beigefügten Zeichnung 1 ausgeführt werden. Ausbesserungen von Schutzdecken aus kunststoffbeschichtetem Gewebe können auch nach dem in Absatz 4 beschriebenen Verfahren ausgeführt werden, doch ist in diesem Fall das Kunststoffband auf beiden Seiten der Schutzdecke anzubringen, wobei der Flicken auf der Innenseite der Schutzdecke befestigt wird.
6. Die Schutzdecke muß an dem Behälter so befestigt sein, daß die Bedingungen des Artikels 1 lit. a und b dieser Vorschriften in vollem Umfang erfüllt sind. Die folgenden Befestigungssysteme können verwendet werden:
- a) Die Schutzdecke kann befestigt werden durch
- i) am Behälter befestigte Metallringe;
- ii) in den Rand der Schutzdecke eingelassene Ösen;
- iii) ein Befestigungsmittel, das über der Schutzdecke durch die Ringe führt und in seiner ganzen Länge von außen sichtbar ist.
- Die Schutzdecke muß den festen Teil des Behälters um mindestens 250 mm, von der Mitte der Befestigungsringe an gemessen, überdecken, sofern nicht schon die Art der Konstruktion des Behälters als solche jeden Zugang zu den Waren verhindert.
- b) Wenn der Rand der Schutzdecke auf Dauer an einem Container befestigt werden soll, müssen die beiden Oberflächen lückenlos miteinander verbunden und durch feste Vorrichtungen gehalten sein.
- c) Wird ein System zum Verschließen der Schutzdecke verwendet, so hat dieses in geschlossener Stellung die Schutzdecke fest mit der Außenseite des Behälters zu verbinden (als Beispiel siehe Zeichnung Nr. 6).
7. Die Schutzdecke muß von einem entsprechenden Aufbau (Pfosten, Wände, Tragbügel, Latten usw.) gestützt sein.
8. Der Zwischenraum zwischen den Ringen und zwischen den Ösen darf 200 mm nicht übersteigen. Zwischen den Ringen und den Ösen an jeder Seite des Pfostens kann der Zwischenraum jedoch größer sein, wenn die Konstruktion des Behälters und der Schutzdecke so gestaltet ist, daß jeder Zugang zum Inneren des Behälters verhindert wird, darf aber 300 mm nicht übersteigen. Die Ösen müssen verstärkt sein.
(9) Als Befestigungsmittel sind zu verwenden
- a) Stahldrahtseile von mindestens 3 mm Durchmesser,
- b) Hanf- oder Sisalseile von mindestens 8 mm Durchmesser, die mit einem durchsichtigen, nicht dehnbaren Kunststoffüberzug versehen sind,
- c) Seile aus gebündelten, mit Spiraldraht ummantelten Glasfaserbändern, die mit einem durchsichtigen, nicht dehnbaren Kunststoffüberzug versehen sind, oder
- d) Seile mit einer Textilseele, die von mindestens vier Litzen aus Stahldraht so umwunden ist, dass die Seele vollständig bedeckt ist, wobei das Seil (ohne einen gegebenenfalls vorhandenen durchsichtigen Überzug) einen Durchmesser von mindestens 3 mm haben muss.
- Seile nach Buchstabe a oder d dürfen mit einem durchsichtigen, nicht dehnbaren Kunststoffüberzug versehen sein.
(10) Jedes Seil, gleich welcher Art, muss aus einem einzigen Stück bestehen und an beiden Enden mit einer Zwinge aus hartem Metall versehen sein. An jeder Zwinge muss die Zollschnur oder das Band für den Zollverschluss durchgezogen werden können. Die Befestigungsvorrichtung jeder Zwinge an den Enden von Seilen nach Absatz 9 Buchstaben a, b und d muss eine durch das Seil gehende Hohlniete enthalten, durch die die Zollschnur oder das Band für den Zollverschluss durchgezogen werden kann. Das Seil muss auf beiden Seiten der Hohlniete sichtbar sein, damit festgestellt werden kann, ob es aus einem einzigen Stück besteht (siehe die diesen Vorschriften beigefügte Zeichnung 5).
11. An den Öffnungen der Schutzdecke, die zum Beladen und Entladen dienen, muß die Verbindung lückenlos sein. Die folgenden Systeme können angewendet werden:
- a) Die beiden Ränder der Schutzdecke müssen einander ausreichend überlappen. Außerdem muß ihr Verschluß gesichert sein durch
- i) einen Überfall, der nach Absatz 3 oder 4 angenäht oder angeschweißt ist;
- ii) Ringe und Ösen, die den Bedingungen des Absatzes 8 entsprechen; die Ringe müssen aus Metall gefertigt sein; und
- iii) einen Riemen aus geeignetem Material, der aus einem einzigen Stück besteht, nicht dehnbar, mindestens 20 mm breit und 3 mm dick ist und der durch die Ringe geführt wird und die beiden Ränder der Schutzdecke und den Überfall zusammenhält; der Riemen muß an der Innenseite der Schutzdecke befestigt und entweder
- – mit einer Öse zur Aufnahme des in Absatz 9 angeführten Seiles versehen sein oder
- – mit einer Öse versehen sein, die über den in Absatz 6 angeführten Metallring gezogen und durch das in Absatz 9 angeführte Seil gesichert werden kann.
- Ein Überfall ist nicht erforderlich, wenn durch eine Spezialvorrichtung (Sperre usw.) ein Zugang zum Laderaum nicht möglich ist, ohne sichtbare Spuren zu hinterlassen. Bei Behältern mit Schiebeplanen ist ein Überfall ebenfalls nicht erforderlich.
- b) Ein besonderes Schutzdeckenverschlußsystem, durch das die Ränder der Schutzdecken zusammengehalten werden, nachdem der Laderaum geschlossen und mit einem Zollverschluß versehen worden ist. Das System ist mit einer Öffnung ausgestattet, durch die ein in Absatz 6 angeführter Metallring gezogen und durch das in Absatz 9 angeführte Seil gesichert werden kann. Dieses System wird in der dieser Anlage beigefügten Zeichnung 8 beschrieben.
Beschreibung
Bei diesem Verschlußsystem werden die beiden Ränder an den Öffnungen der Schutzdecke, die zum Beladen und Entladen dienen, mit einer Verschlußstange aus Aluminium verbunden. Die Öffnungen der Schutzdecke sind über ihre ganze Länge mit einem durch einen Saum geführten Seil versehen (Zeichnung 8.1), so daß die Schutzdecke nicht aus dem Verschlußprofil gezogen werden kann. Der Saum ist an der Außenseite angebracht und entsprechend Anlage 2 Artikel 3 Absatz 4 verschweißt. Die Ränder werden in die offenen Profile der Verschlußstange aus Aluminium eingeführt und in zwei über die ganze Länge parallellaufende Kanäle geschoben, die an ihren unteren Enden geschlossen sind. Befindet sich die Verschlußstange in senkrechter Stellung, sind die Ränder der Schutzdecke miteinander verbunden. Die Verschlußstange wird am oberen Ende der Öffnung durch eine an die Schutzdecke genietete durchsichtige Kunststoffkappe gesichert (Zeichnung 8.2). Die Verschlußstange besteht aus zwei Teilen, die durch ein vernietetes Scharnier verbunden sind, so daß sie durch Zusammenklappen einfacher angebracht oder entfernt werden kann. Dieses Scharnier muß so beschaffen sein, daß der Scharnierbolzen bei angelegtem Zollverschluß nicht entfernt werden kann (Zeichnung 8.3). Am unteren Ende der Verschlußstange befindet sich eine Öffnung, durch die der Ring geführt wird. Die Öffnung ist oval und so klein, daß der Ring gerade durchgesteckt werden kann (Zeichnung 8.4). Das TIR-Verschlußseil wird durch diesen Ring gezogen, um die Verschlußstange zu sichern.
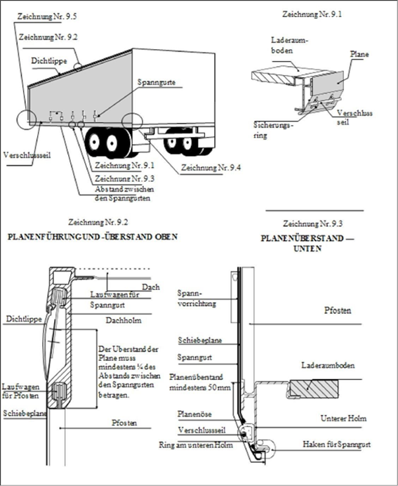
Behälter mit Schiebeplanen
(1) Die Artikel 1, 2 und 3 gelten auch für Behälter mit Schiebeplanen, soweit sie darauf anwendbar sind. Außerdem müssen diese Behälter den Bestimmungen dieses Artikels entsprechen.
(2) Schiebeplanen, Boden, Türen und andere Bestandteile des Behälters müssen den Erfordernissen in Artikel 4 Absätze 6, 8, 9 und 11 oder denen in nachstehenden Ziffern (i) bis (vi) entsprechen.
- i) Schiebeplanen, Boden, Türen und alle anderen Bestandteile des Behälters müssen entweder durch Vorrichtungen, die von außen nicht entfernt und wieder angebracht werden können, ohne sichtbare Spuren zu hinterlassen, oder durch eine Konstruktion zusammengefügt sein, die ohne Hinterlassung sichtbarer Spuren nicht verändert werden kann.
- (ii) Die Schutzdecke muss den festen Teil am Dach des Behälters um mindestens ¼ des tatsächlichen Abstands zwischen den Spanngurten überdecken. Die Schutzdecke muss den festen Teil am Behälter um mindestens 50 mm überdecken. Die horizontale Öffnung zwischen der Schutzdecke und dem festen Teil des Behälters darf 10 mm, senkrecht an einer beliebigen Stelle der Längsachse des Behälters gemessen, nicht überschreiten, wenn der Behälter zollamtlich verschlossen ist.
- iii) Die Führung der Schiebeplane, die Schiebeplanenspannvorrichtungen und andere bewegliche Teile müssen so zusammengefügt sein, dass, wenn sie verschlossen und zollamtlich versiegelt sind, Türen und andere bewegliche Teile nicht ohne Hinterlassung sichtbarer Spuren von außen geöffnet oder geschlossen werden können. Die Führung der Schiebeplane, die Schiebeplanenspannvorrichtungen und andere bewegliche Teile müssen so zusammengefügt sein, dass der Zugang zum Behälter nach Sicherung der Verschlussvorrichtungen ohne Hinterlassung sichtbarer Spuren nicht möglich ist. Ein Beispiel für eine solche Konstruktion ist in der diesen Vorschriften beigefügten Zeichnung Nr. 9 dargestellt.
- (iv) Der waagerechte Abstand zwischen den Ringen für den Zollverschluss darf an den festen Bestandteilen des Behälters 200 mm nicht übersteigen. Der Abstand kann auch größer sein, darf jedoch höchstens 300 mm auf jeder Seite des Holms betragen, wenn die Art der Konstruktion des Behälters und die Schutzdecke als solche jeden Zugang zum Behälter verhindern. Die in Unterabsatz (ii) enthaltenen Bestimmungen müssen in jedem Fall erfüllt sein.
- (v) Der Abstand zwischen den Spanngurten darf höchstens 600 mm betragen.
- (vi) Die Befestigungsmittel zur Befestigung der Schutzdecke an den festen Bestandteilen des Behälters müssen den Erfordernissen in Artikel 4 Absatz 9 entsprechen.
Behälter mit einem Schiebeplanendach
(1) Die Artikel 1, 2, 3, 4 und 5 gelten für Behälter mit Schiebeplanendach, soweit sie darauf anwendbar sind. Außerdem müssen diese Behälter den Bestimmungen des vorliegenden Artikels entsprechen.
(2) Das Schiebeplanendach muss den Erfordernissen der nachstehenden Ziffern i bis iii entsprechen.
- i) Das Schiebeplanendach muss entweder durch Vorrichtungen, die von außen nicht entfernt und wieder angebracht werden können, ohne sichtbare Spuren zu hinterlassen, oder durch eine Konstruktion zusammengefügt sein, die ohne Hinterlassung sichtbarer Spuren nicht verändert werden kann.
- ii) Das Schiebeplanendach muss den festen Teil des Daches an der Behältervorderseite so überdecken, dass die Dachplane nicht über die Oberkante des oberen Trägers gezogen werden kann. An beiden Längsseiten des Behälters ist in den Saum der Dachplane ein vorgespanntes Stahlseil derart einzuführen, dass es nicht entfernt und wieder eingeführt werden kann, ohne sichtbare Spuren zu hinterlassen. Das Schiebeplanendach muss so am Laufapparat gesichert werden, dass es nicht entfernt und wieder gesichert werden kann, ohne sichtbare Spuren zu hinterlassen.
- iii) Die Führung des Schiebeplanendachs, die Schiebeplanenspannvorrichtungen und andere bewegliche Teile müssen so zusammengefügt sein, dass, wenn sie verschlossen und zollamtlich versiegelt sind, Türen, Dächer und andere bewegliche Teile nicht ohne Hinterlassung sichtbarer Spuren von außen geöffnet oder geschlossen werden können. Die Führung des Schiebeplanendachs, die Schiebeplanenspannvorrichtungen und andere bewegliche Teile müssen so zusammengefügt sein, dass der Zugang zum Behälter nach Sicherung der Verschlussvorrichtungen ohne Hinterlassung sichtbarer Spuren nicht möglich ist.
Ein Beispiel für eine mögliche Konstruktion ist in der diesen Vorschriften beigefügten Zeichnung Nr. 10 dargestellt.
Teil I – Zeichnung 1
SCHUTZDECKE AUS MEHREREN STÜCKEN
(zusammengenäht)
Teil I – Zeichnung 2
SCHUTZDECKE AUS MEHREREN STÜCKEN
Teil I – Zeichnung 3
SCHUTZDECKE AUS MEHREREN STÜCKEN
(zusammengeschweißt)
Teil I – Zeichnung 4
AUSBESSERUNG DER SCHUTZDECKE
Teil I – Zeichnung 5
Muster einer Zwinge
Zeichnung Nr. 6
BEISPIEL EINES SYSTEMS ZUM VERSCHLIESSEN DER SCHUTZDECKE
Beschreibung:
Dieses System zum Verschließen der Schutzdecke ist unter der Voraussetzung zulässig, daß es mit mindestens einem Metallring an jeder Türseite befestigt wird. Die Öffnungen, durch die die Ringe hindurchgehen, sind oval und gerade so groß, daß der Ring hindurchgeht. Ist das Befestigungssystem geschlossen, steht der sichtbare Teil des Metallringes höchstens um das Doppelte der maximal zulässigen Stärke des Befestigungsseiles über.
Zeichnung Nr. 7
MUSTER VON SCHUTZDECKEN, DIE AN BESONDERS GEFORMTEN RAHMEN BEFESTIGT SIND
Beschreibung:
Diese Art der Befestigung der Schutzdecke am Fahrzeug kann zugelassen werden, wenn die Ringe im Profil vertieft sind und über die Tiefe des Profils nicht vorstehen. Die Breite des Profils soll so schmal wie möglich sein.
Zeichnung Nr. 8
Schutzdeckenverschlußsystem an den Öffnungen zum Beladen und Entladen
Zeichnung Nr. 9
BEISPIEL FÜR DIE KONSTRUKTION EINES BEHÄLTERS MIT SCHIEBEPLANEN
Zeichnung Nr. 9, Fortsetzung:
Zeichnung Nr. 9, Fortsetzung:
Zeichnung Nr. 10
BEISPIEL FÜR DIE KONSTRUKTION EINES BEHÄLTERS MIT DACHSCHIEBEPLANE
Zeichnung Nr. 10, Fortsetzung:
Zeichnung Nr. 10, Fortsetzung:
Teil II
VERFAHREN BEI DER ZULASSUNG VON BEHÄLTERN, DIE DEN TECHNISCHEN BEDINGUNGEN DES TEILS I ENTSPRECHEN
Allgemeines
(1) Behälter können zum Warentransport unter Zollverschluß zugelassen werden
- a) auf der Herstellungsstufe nach dem Konstruktionstyp (Verfahren für die Zulassung auf der Herstellungsstufe)
- oder
- b) auf einer späteren Stufe als der der Herstellung entweder einzeln oder für eine bestimmte Zahl von Behältern des gleichen Typs (Verfahren für die Zulassung auf einer späteren Stufe als der der Herstellung).
Gemeinsame Bestimmungen für beide Zulassungsverfahren
(2) Die für die Zulassung zuständige Behörde stellt dem Antragsteller nach der Zulassung ein Verschlußanerkenntnis (Zulassungsbescheinigung) aus, das entweder für eine zahlenmäßig unbegrenzte Serie von Behältern des zugelassenen Typs oder für eine bestimmte Zahl von Behältern gilt.
(3) Der Inhaber der Zulassung muß, bevor zugelassene Behälter zum Warentransport unter Zollverschluß benutzt werden, daran eine Zulassungstafel anbringen.
(4) Die Zulassungstafel muß fest an einer gut sichtbaren Stelle neben etwaigen anderen für amtliche Zwecke bestimmten Tafeln angebracht werden.
(5) Die Zulassungstafel nach dem in Anhang 1 zu diesem Teil abgebildeten Muster I besteht aus einer mindestens 20 cm mal 10 cm großen Metalltafel. Die Fläche der Tafel muß die folgenden Angaben mindestens in französischer oder englischer Sprache in vertiefter oder erhabener Prägung oder in einer anderen dauerhaft lesbaren Schrift tragen:
- a) die Worte „Agree pour le transport sous scellement douanier“ oder „Approved for transport under Customs seal“;
- b) die Bezeichnung des Landes, in dem der Behälter zugelassen worden ist, entweder ausgeschrieben oder durch das im internationalen Kraftfahrzeugverkehr verwendete Unterscheidungszeichen sowie die Nummer (Ziffern, Buchstaben usw.) des Verschlußanerkenntnisses (Zulassungsbescheinigung) und das Zulassungsjahr (z. B. „NL/26/73“ für Niederlande, Zulassungsbescheinigung Nr. 26 von 1973);
- c) die dem Behälter vom Hersteller gegebene laufende Nummer (Fabrikationsnummer);
- d) wenn der Behälter nach dem Typ zugelassen ist, die Erkennungsnummern oder -buchstaben des Behältertyps.
(6) Entspricht ein Behälter nicht mehr den für seine Zulassung vorgeschriebenen technischen Bedingungen, so muß er, bevor er zum Warentransport unter Zollverschluß verwendet werden kann, wieder in den Zustand versetzt werden, der für seine Zulassung maßgebend war, damit er den technischen Bedingungen wieder entspricht.
(7) Werden wesentliche Merkmale eines Behälters geändert, so erlischt seine Zulassung; er muß, bevor er zum Warentransport unter Zollverschluß verwendet werden kann, von der zuständigen Behörde erneut zugelassen werden.
Sonderbestimmungen für die Zulassung nach dem Konstruktionstyp auf der Herstellungsstufe
(8) Werden Behälter eines Typs in Serie hergestellt, so kann der Hersteller bei der zuständigen Behörde des Herstellungslandes die Zulassung nach dem Konstruktionstyp beantragen.
(9) Der Hersteller muß in seinem Antrag die Erkennungsnummern oder -buchstaben angeben, die er dem Behältertyp, dessen Zulassung er beantragt, gibt.
(10) Dem Antrag sind Zeichnungen und eine detaillierte Konstruktionsbeschreibung des zuzulassenden Behältertyps beizufügen.
(11) Der Hersteller muß sich schriftlich verpflichten,
- a) der zuständigen Behörde die Behälter des betreffenden Typs, die sie prüfen möchte, vorzuführen;
- b) der zuständigen Behörde während der Herstellung der Serie des betreffenden Typs jederzeit die Prüfung weiterer Behälter zu gestatten;
- c) der zuständigen Behörde jede, auch die kleinste Änderung der Bauart vor ihrer Durchführung anzuzeigen;
- d) auf den Behältern an einer sichtbaren Stelle zusätzlich zu den Angaben auf der Zulassungstafel die Erkennungsnummern oder -buchstaben des Typs sowie ihre laufende Nummer in der Serie des betreffenden Typs (Fabrikationsnummer) anzubringen;
- e) ein Verzeichnis der hergestellten Behälter der zugelassenen Bauart zu führen.
(12) Die zuständige Behörde teilt mit, welche Änderungen gegebenenfalls an der vorgeschlagenen Bauart vorgenommen werden müssen, damit sie zugelassen werden kann.
(13) Es wird keine Zulassung nach dem Konstruktionstyp erteilt, ohne daß sich die zuständige Behörde durch Prüfung eines oder mehrerer hergestellter Behälter dieses Typs davon überzeugt hat, daß die Behälter den technischen Bedingungen von Teil I entsprechen.
(14) Wird ein Behältertyp zugelassen, so wird dem Antragsteller ein einziges Verschlußanerkenntnis (Zulassungsbescheinigung) nach dem im Anhang 2 zu diesem Teil abgedruckten Muster II erteilt, das für sämtliche nach der Beschreibung des zugelassenen Typs hergestellte Behälter gilt. Dieses Verschlußanerkenntnis (Zulassungsbescheinigung) berechtigt den Hersteller, an jedem Behälter der Serie des Typs eine Zulassungstafel nach Absatz 5 anzubringen.
Besondere Bestimmungen für die Zulassung auf einer späteren Stufe als der der Herstellung
(15) Ist die Zulassung auf der Herstellungsstufe nicht beantragt worden, so kann der Eigentümer, der Halter oder der Vertreter des einen oder des anderen die Zulassung bei der zuständigen Behörde beantragen, bei der es ihm möglich ist, den oder die Behälter vorzuführen, deren Zulassung beantragt wird.
(16) In jedem Zulassungsantrag nach Absatz 15 muß die laufende Nummer (Fabrikationsnummer) angegeben werden, die der Hersteller auf dem einzelnen Behälter angebracht hat.
(17) Die zuständige Behörde prüft die nach ihrem Ermessen nötige Zahl von Behältern und stellt, nachdem sie sich davon überzeugt hat, daß die Behälter den technischen Bedingungen von Teil I entsprechen, ein Verschlußanerkenntnis (Zulassungbescheinigung) nach dem in Anhang 3 zu diesem Teil abgedruckten Muster III aus, das nur für die Zahl der zugelassenen Behälter gilt. Dieses Verschlußanerkenntnis (Zulassungsbescheinigung), in dem die laufende Fabrikationsnummer der Behälter, für die sie gilt, anzugeben ist, berechtigt den Antragsteller, an jedem so zugelassenen Behälter die Zulassungstafel nach Absatz 5 anzubringen.
Anhang 1 von Teil II
MUSTER I
ZULASSUNGSTAFEL
(englische Fassung)
Anhang 2 von Teil II
MUSTER II
ZOLLABKOMMEN ÜBER DEN INTERNATIONALEN WARENTRANSPORT MIT CARNETS TIR VON 1975
Bescheinigung über die Zulassung nach dem Konstruktionstyp
Anhang 3 von Teil II
MUSTER III
ZOLLABKOMMEN ÜBER DEN INTERNATIONALEN WARENTRANSPORT MIT CARNETS TIR VON 1975
Bescheinigung über die Zulassung auf einer späteren Stufe als der der Herstellung
Teil III
ERLÄUTERUNGEN
- 1. Die Erläuterungen zur Anlage 2, die in der Anlage 6 zu diesem Abkommen enthalten sind, gelten sinngemäß für Behälter, die in Anwendung dieses Abkommens zum Warentransport unter Zollverschluß zugelassen sind.
- 2. Teil I – Artikel 4 Absatz 6 lit. a
- Die diesem Teil III beigefügte Zeichnung gibt ein Beispiel für eine für zollamtliche Zwecke zugelassene Vorrichtung zur Befestigung der Schutzdecke um die Eckpfosten.
- 3. Teil II – Absatz 5
- Sind zwei zum Warentransport unter Zollverschluß zugelassene Behälter mit Schutzdecken so miteinander verbunden, daß sie zusammen einen mit einer einzigen Schutzdecke abgedeckten Behälter bilden, der den Bedingungen für den Warentransport unter Zollverschluß entspricht, so werden für diese Verbindung kein besonderes Verschlußanerkenntnis (Zulassungsbescheinigung) und keine besondere Zulassungstafel gefordert.
Zuletzt aktualisiert am
21.02.2023
Gesetzesnummer
10004271
Dokumentnummer
NOR40220636
Lizenziert vom RIS (ris.bka.gv.at - CC BY 4.0 DEED)
