Anlage 1
ANLAGE
emäß (Anm.: richtig: gemäß) Art. IV Z 1 der Vereinbarung zum Bundesgesetz über die Errichtung eines Universitätszentrums für Weiterbildung Donau-Universität Krems)
Wissenschaftliche Landesakademie für Niederösterreich EZ 355, GStNr. 363 |
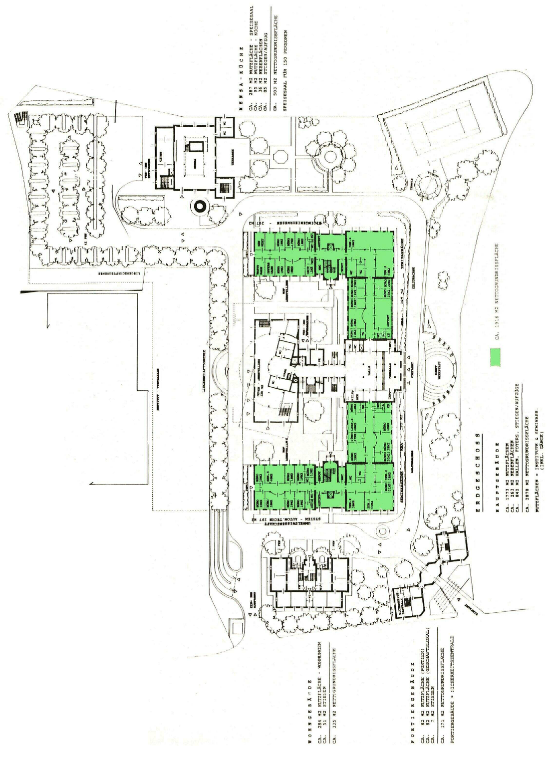
ZUSAMMENFASSUNG
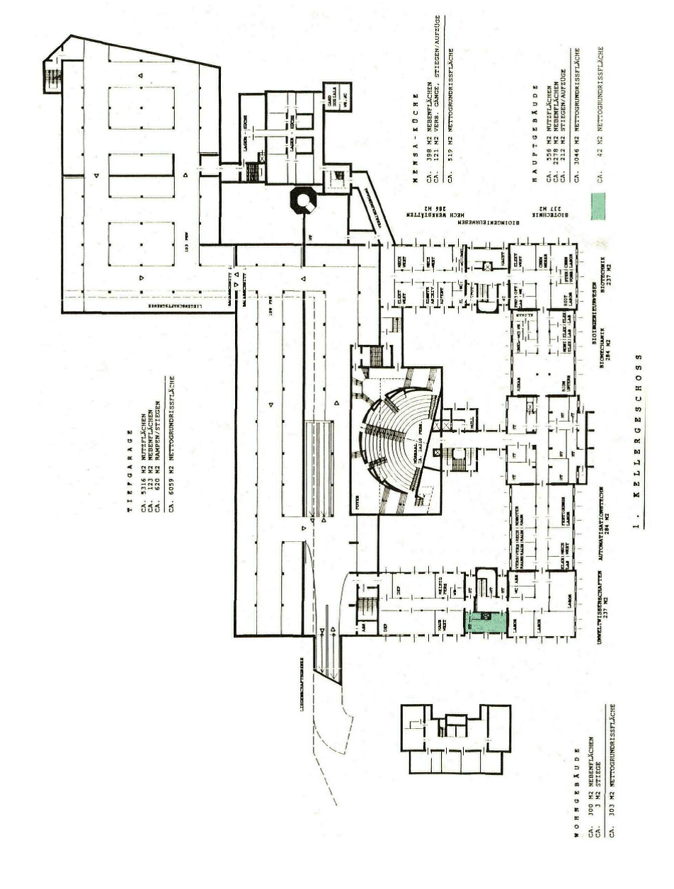
GESCHOSS | Nutzflächen | Nebenflächen | Verkehrsflächen | Gesamt |
Keller | - | 42 | - | 42 |
ERDGESCHOSS | 1.236 | 208 | 472 | 1.916 |
1. STOCK | 618 (454)''p'' | 104 | 252 (16)''p'' | 974 (470)''p'' |
2. STOCK | 411 (597)''p'' | 81 | 187 (33)''p'' | 679 (630)''p'' |
3. STOCK | 365 | 87 | 186 | 638 |
GESAMTFLÄCHEN MIT PROVISORIEN | 3.681 | 522 | 1.146 | 5.349 |
Zuletzt aktualisiert am
12.02.2025
Gesetzesnummer
10001349
Dokumentnummer
NOR12014966
alte Dokumentnummer
N1199438497J
Lizenziert vom RIS (ris.bka.gv.at - CC BY 4.0 DEED)
